logo MMCV logo MMCV

Chivilcoy Seirén

Ubicado en el corazón de Villa Devoto, a metros de Plaza Arenales, el proyecto se implanta en un lote de triple frente que potencia la amplitud, luz y conexión con el exterior.

En Plata Baja un local gastronómico genera un punto de encuentro que integra el proyecto a la vida del barrio, promoviendo el uso activo del espacio público.

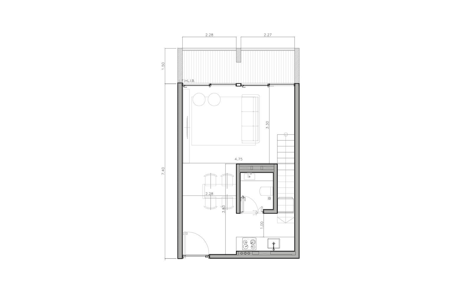
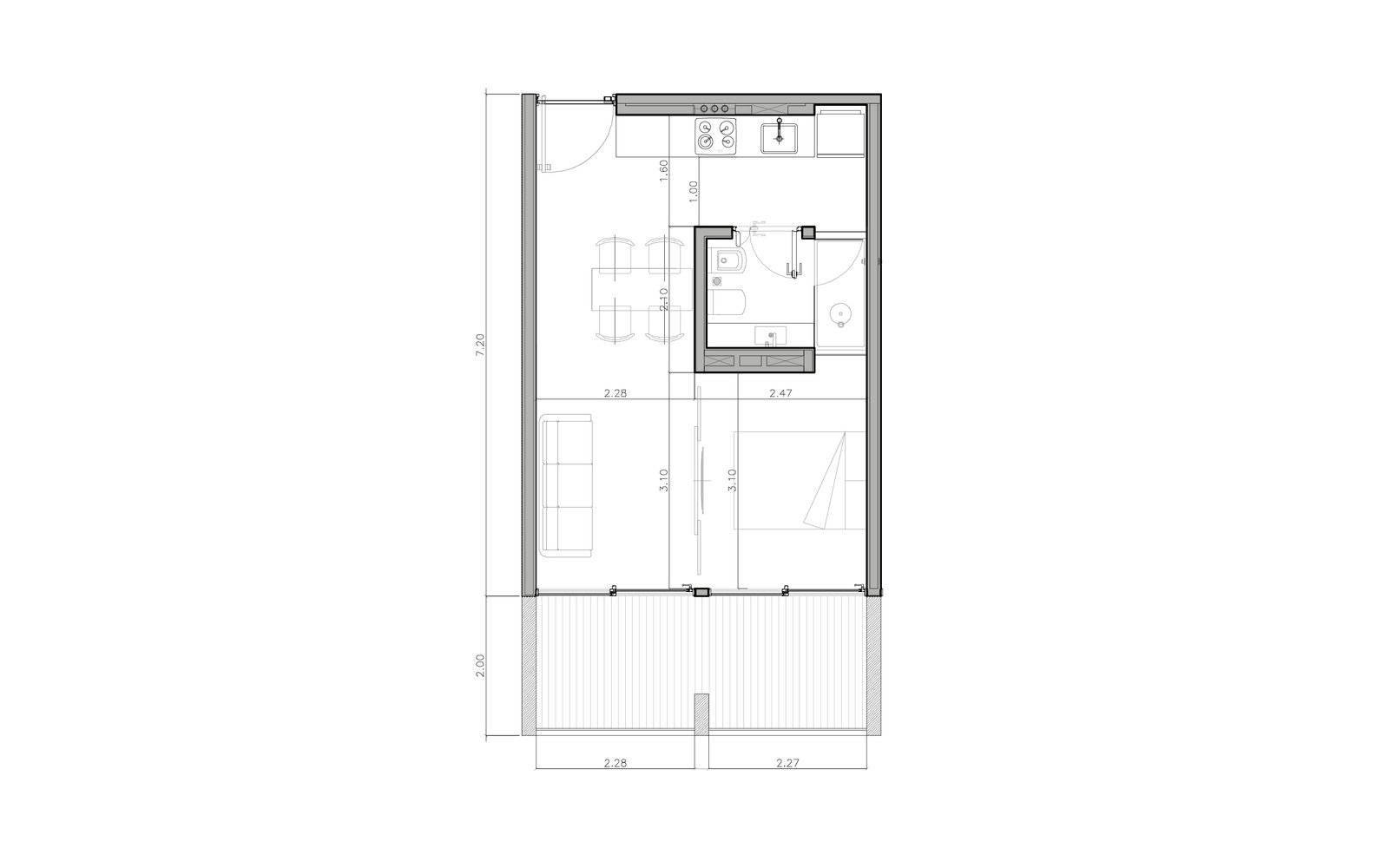
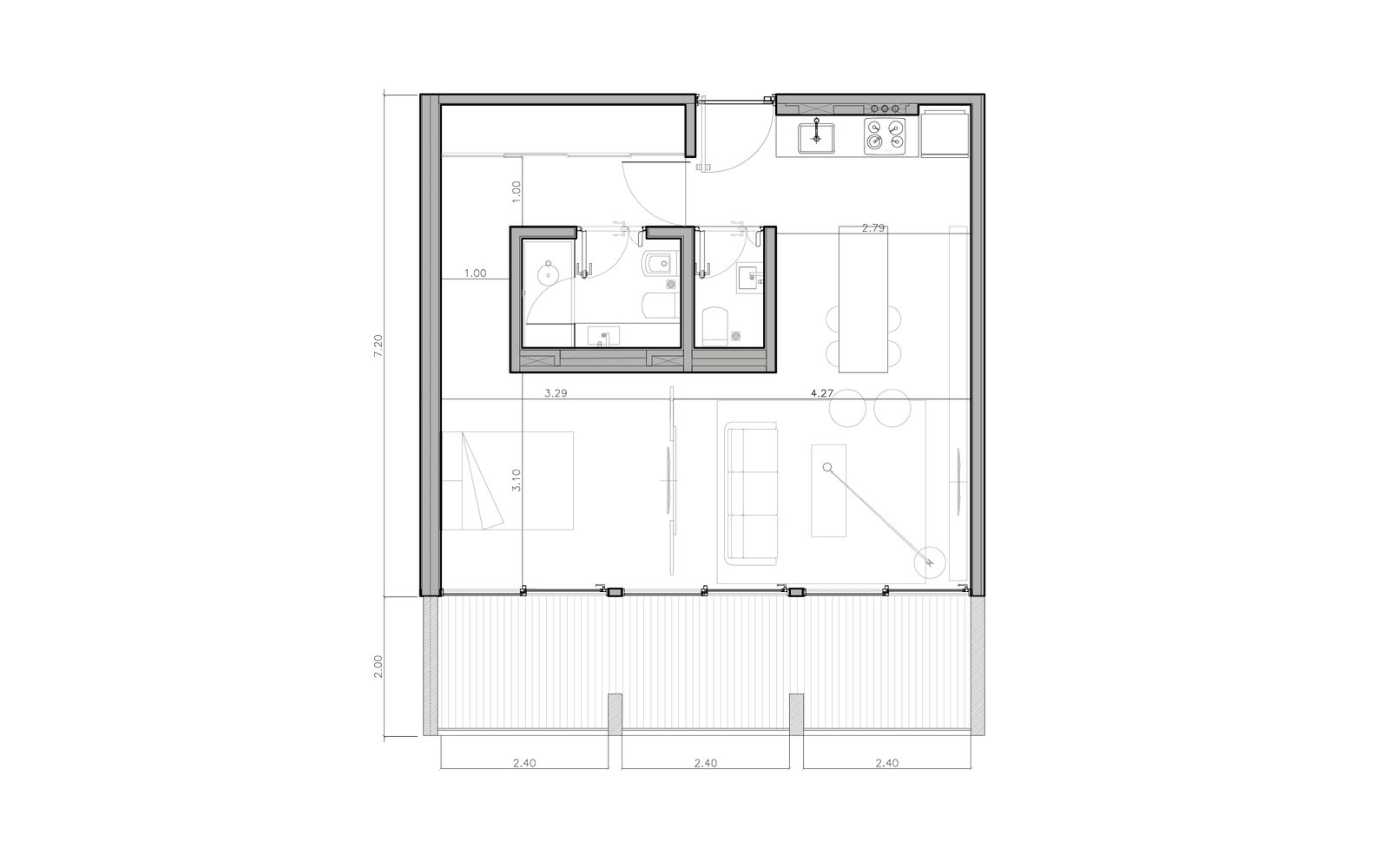
Las unidades cuentan con balcones aterrazados que prolongan la vida interior hacia la arbolada del boulevard y el paisaje urbano. Ambientes amplios, flexibles y luminosos.

Terraza con piscina, solarium y espacios verdes.

Adquirir uno de nuestros productos es asegurar un diseño y una calidad singular. Te invitamos a formar parte de nuestros proyectos. La ubicación, la arquitectura, los amenities y los programas de usos mixtos garantizan el éxito de nuestros edificios. CONTACTANOS